Eckdaten
| Immobilientyp | Etagenwohnung |
|---|---|
| Baujahr | 1972 |
| Letzte Modernisierung / Sanierung | 2025 |
| Verfügbar ab | vermietet |
| Objektzustand | Gepflegt |
| Qualität der Ausstattung | Normal |
| Anzahl Stellplätze | 1 |
| Stellplatz | Garage |
Beschreibung
**Attraktive 4,5-Zimmer-Wohnung in Herbolzheim – Ihr neues Zuhause oder eine lukrative Kapitalanlage!**
Wir präsentieren Ihnen eine charmante 4,5-Zimmer-Wohnung in einem gepflegten Mehrfamilienhaus in Herbolzheim. Diese Wohnung ist derzeit vermietet und überzeugt durch ihren sehr guten Zustand. Sie ist damit eine ideale Möglichkeit für Investoren oder für Käufer, die sich eine zukünftige Selbstnutzung wünschen.
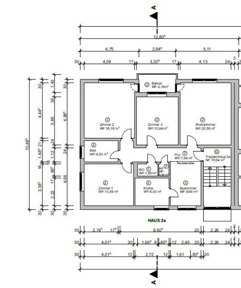
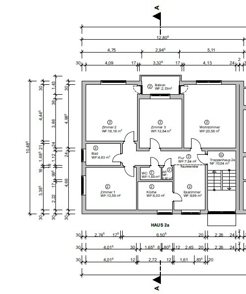
Die Wohnung befindet sich im ersten Obergeschoss und bietet Ihnen eine durchdachte Raumaufteilung. Die lichtdurchfluteten Räume schaffen eine einladende Atmosphäre und bieten Ihnen viele Gestaltungsmöglichkeiten.
Der Balkon auf der Rückseite des Hauses.
Im Haus fanden/finden noch Sanierungen statt. Diese sind im Einzelnen:
Fassadendämmung (WDVS 160mm) + neuer Putz + neue Fensterbänke
Verlängerung des Dachvorsprungs (beidseitig)
Balkonsanierung
Dachdämmung durch DG Ausbau
Dachreinigung und neue Dachbeschichtung
Erneuerung der Fallrohre (Regenrinnen)
Erneuerung des Elektrozählerkastens (Hauselektrik)
Einbau einer neuen Pelletheizung
Erneuerung der Hauseingangstüren
Renovierung der Treppenhäuser
Garagen frisch gestrichen + Erneuerung der Garagendächer
Das Badezimmer wurde kürzlich renoviert und überzeugt durch moderne Ausstattung und eine ansprechende Gestaltung. Zudem wurden alle Fenster erneuert, wodurch nicht nur der Schallschutz, sondern auch die Energieeffizienz der Wohnung deutlich erhöht wurden. Das gesamte Gebäude wurde zudem isoliert, was Ihren Wohnkomfort zusätzlich steigert und die Nebenkosten reduziert.
Zur Wohnung gehört eine eigene Garage, die Ihnen nicht nur Schutz vor Witterungseinflüssen bietet, sondern auch zusätzlichen Stauraum für Fahrräder oder andere Utensilien. Des Weiteren profitieren Sie von einem eigenen Kellerraum im Untergeschoss des Hauses, der Ihnen weiteren Platz für Ihre persönlichen Gegenstände bietet.
Im Erdgeschoss (Hochparterre) befindet sich eine identische Wohnung, diese wird ebenfalls zu den gleichen Konditionen verkauft. Diese ist ebenfalls vermietet.
Die Lage in Herbolzheim zeichnet sich durch eine gute Anbindung an die Infrastruktur aus. Einkaufsmöglichkeiten, Schulen und öffentliche Verkehrsmittel sind in unmittelbarer Nähe und tragen zur hohen Lebensqualität bei.
Nutzen Sie die Chance, Eigentum in dieser begehrten Lage zu erwerben. Ob als Kapitalanlage oder für den Eigenbedarf – diese Wohnung ist eine hervorragende Wahl!
Vereinbaren Sie noch heute einen Besichtigungstermin und überzeugen Sie sich selbst von den Vorzügen dieser ansprechenden Immobilie!
Fläche
| Wohnfläche | ca. 97 m² |
|---|---|
| Zimmer | 4,5 |
| Anzahl Schlafzimmer | 2 |
| Anzahl Badezimmer | 1 |
| Etage | 1. OG |
| Etagenzahl insgesamt | 2 |
Preis
| Kaufpreis | 249.000 € |
|---|---|
| Grunderwerbsteuer | 5,0 % |
| Maklerprovision | 3,57 % |
| Notarkosten / Grundbucheintrag | 1,0 % |
Vertragsgrundlage unserer Leistung sind unsere Allgemeinen Geschäftsbedingungen.
Dies ist der aktuelle Angebotskaufpreis. Wir weisen darauf hin, dass dieser Angebotskaufpreis fallen oder bei erheblicher Nachfrage nach Objekten dieser Art auch steigen kann.
Die Maklercourtage beträgt 3,57 % inkl. der gesetzlichen Mehrwertsteuer. Sie ist verdient und fällig bei Abschluss eines notariellen Kaufvertrages und vom Käufer zu zahlen. Grunderwerbssteuer, Notar- und Gerichtskosten sind vom Käufer zu tragen. Im Übrigen gelten unsere Allgemeinen Geschäftsbedingungen. Irrtum und Zwischenverkauf vorbehalten.
Energie
| Energieausweis | Energieausweis liegt zur Besichtigung vor |
|---|---|
| Baujahr laut Energieausweis | 1996 |
| Wesentliche Energieträger | Öl |
| Heizungsart | Zentralheizung |
Bilder
Lage
Herbolzheim, eine charmante Stadt mit ausgezeichneter Verkehrsanbindung, bietet sowohl einen Bahnhof als auch einen direkten Autobahnanschluss. Diese optimale Lage ermöglicht nicht nur eine unkomplizierte Erreichbarkeit für Pendler, sondern auch eine hervorragende Anbindung an umliegende Städte und Regionen.
Genießen Sie die Vorzüge einer Stadt, die sowohl Ruhe als auch eine lebendige Infrastruktur vereint. Herbolzheim ist der ideale Ausgangspunkt für alle, die sowohl die Natur als auch städtische Annehmlichkeiten schätzen. Lassen Sie sich von den Möglichkeiten begeistern, die diese attraktive Lage für Ihr neues Zuhause oder Ihre Investition bietet.
Karte
Belchenstraße 2a, 79336 Herbolzheim
Herr Michael Utz
IMA Immobilien GmbH
| Webseite | https://www.ima-immobilien.de/ |
|---|---|
| Telefonnummer | +49 7821 954580 |
| Mobilnummer | +49 160 8077899 |
| E-Mail-Adresse | utz@ima-immobilien.de |
| Adresse | Alte Bahnhofstraße 10/4, 77933 Lahr/Schwarzwald |