Eckdaten
| Immobilientyp | Mehrfamilienhaus |
|---|---|
| Baujahr | 2010 |
| Bauphase | Haus Fertig Gestellt |
| Letzte Modernisierung / Sanierung | 2017 |
| Verfügbar ab | sofort |
| Objektzustand | Gepflegt |
| Qualität der Ausstattung | Gehoben |
| Anzahl Stellplätze | 6 |
| Stellplatz | Außenstellplatz |
Beschreibung
**Exquisites Landhaus in Top-Lage von Rust – Ideal für Eigennutzer oder als profitable Ferienimmobilie**
Willkommen in Ihrem neuen Zuhause oder Ihrer lukrativen Investitionsmöglichkeit! Dieses außergewöhnliche Landhaus, das sich in unmittelbarer Nähe zum Europapark Rust und dem Wasserpark Rulantica befindet, bietet Ihnen sowohl hohen Wohnkomfort als auch die Möglichkeit, drei genehmigte Ferienwohnungen anzubieten und von der stetigen Nachfrage zu profitieren.
**Highlights des Objekts:**
– Exzellente Bewertung von 9,8 auf Booking.com – als „außergewöhnlich“ von Feriengästen beschrieben
– Hoher Anteil an Stammgästen, die den Charme und die Qualität der Unterkünfte schätzen
– Keine Renovierungsmaßnahmen erforderlich – das gesamte Haus befindet sich in einem einwandfreien Zustand
– Modernste Heizungs- und Klimatisierungssysteme: Luft-Wasser-Wärmepumpe, Klimaanlage im Obergeschoss und Bodenkühlung im gesamten Haus
– Effiziente Belüftung mit Wärmerückgewinnung für ein angenehmes Raumklima
– Fußläufige Erreichbarkeit des Europaparks und Rulantica
– Schneller Zugang zur Autobahn A5, nur wenige Minuten entfernt
– Frankreich ist ebenfalls in kurzer Fahrzeit erreichbar
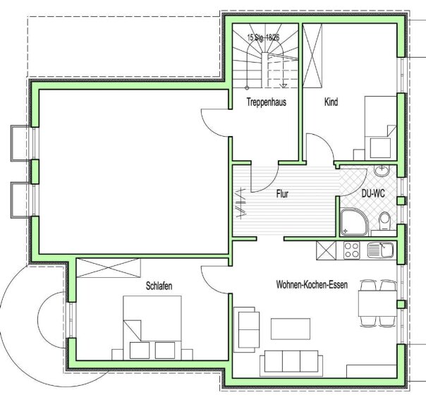
**Aufteilung der Wohnungen:**
1. **Obergeschoss:**
– Wohnfläche: 80 m²
– 2 Schlafzimmer, 1 großzügiges Bad mit Badewanne, Wohn- und Esszimmer sowie eine voll ausgestattete Küche (inkl. Geschirrspüler, Backofen, Mikrowelle, Toaster, Kühlschrank und Kaffeemaschine)
– Schlafmöglichkeiten für bis zu 6 Personen
2. **Souterrain:**
– Wohnfläche: ca. 60 m²
– 2 Schlafzimmer, 1 Bad mit Dusche, Wohn- und Esszimmer sowie eine voll ausgestattete Küche
– Schlafmöglichkeiten für bis zu 6 Personen
3. **Erdgeschoss:**
– Wohnfläche: ca. 100 m²
– 1 Schlafzimmer, 1 Bad, Wohn- und Esszimmer sowie ein großzügiger Wintergarten
– Voll ausgestattete Küche und Schlafmöglichkeiten für bis zu 6 Personen
**Entdecken Sie die Vorzüge der Immobilie bei einer Besichtigung!** Der Einzug ist kurzfristig möglich, ebenso die Übernahme der Ferienwohnungen, die bereits zahlreiche Buchungen haben.
Bitte beachten Sie, dass der Eigentümer vor einer Besichtigung einen Kapitalnachweis verlangt. Nutzen Sie diese einmalige Gelegenheit, sich ein attraktives Investment oder Ihr neues Zuhause zu sichern!
Fläche
| Wohnfläche | ca. 270 m² |
|---|---|
| Grundstücksfläche | ca. 709 m² |
| Zimmer | 9 |
| Etagenzahl insgesamt | 3 |
Preis
| Kaufpreis | 1.598.000 € |
|---|---|
| Grunderwerbsteuer | 5,0 % |
| Maklerprovision | 3,57 % |
| Notarkosten / Grundbucheintrag | 1,5 % |
Vertragsgrundlage unserer Leistung sind unsere Allgemeinen Geschäftsbedingungen.
Dies ist der aktuelle Angebotskaufpreis. Wir weisen darauf hin, dass dieser Angebotskaufpreis fallen oder bei erheblicher Nachfrage nach Objekten dieser Art auch steigen kann.
Die Maklercourtage beträgt 3,57 % inkl. der gesetzlichen Mehrwertsteuer. Sie ist verdient und fällig bei Abschluss eines notariellen Kaufvertrages und vom Käufer zu zahlen. Grunderwerbssteuer, Notar- und Gerichtskosten sind vom Käufer zu tragen. Im Übrigen gelten unsere Allgemeinen Geschäftsbedingungen. Irrtum und Zwischenverkauf vorbehalten.
Energie
| Energieausweis | Energieausweis liegt für das Gebäude vor |
|---|---|
| Erstellungsdatum | Ab 1. Mai 2014 |
| Energieausweistyp | Bedarfsausweis |
| Endenergiebedarf | 18,00 kWh/(m²*a) |
| Energieeffizienzklasse | A+ |
| Baujahr laut Energieausweis | 2010 |
| Wesentliche Energieträger | Strom |
| Heizungsart | Wärmepumpe |
Bilder
Lage
Entdecken Sie die charmante Stadt Rust, direkt an den Toren des weltberühmten Europa-Parks. Diese reizvolle Lage bietet Ihnen nicht nur unmittelbaren Zugang zu einem der größten Freizeitparks Europas, sondern auch eine Vielzahl an Freizeitmöglichkeiten und eine hohe Lebensqualität.
Rust vereint auf harmonische Weise Tradition und Moderne. Die malerische Umgebung, geprägt von Weinbergen und idyllischen Landschaften, lädt zu entspannenden Spaziergängen und Ausflügen ein. Genießen Sie die Vorzüge einer kleinen Stadt mit ihrem familiären Flair und der herzlichen Gemeinschaft.
Die Infrastruktur in Rust ist hervorragend. Einkaufsmöglichkeiten, Schulen und medizinische Einrichtungen befinden sich in unmittelbarer Nähe und sind leicht erreichbar. Auch die Anbindung an das öffentliche Verkehrsnetz ist optimal, sodass Sie schnell und unkompliziert die umliegenden Städte und Attraktionen erreichen können.
Der Europa-Park, als eines der Hauptanziehungspunkte in der Region, bietet nicht nur aufregende Fahrgeschäfte und spektakuläre Shows, sondern auch vielfältige gastronomische Angebote, die sowohl Einheimische als auch Besucher begeistern. Die Nähe zu diesem Freizeitparadies macht Rust besonders attraktiv für Familien und Freizeitliebhaber.
Ob Sie auf der Suche nach einem neuen Zuhause sind oder eine Investition in eine attraktive Immobilie planen – Rust hält für jeden Bedarf das passende Angebot bereit. Von modernen Wohnungen bis hin zu charmanten Einfamilienhäusern, hier finden Sie das ideale Wohnkonzept.
Nutzen Sie die Gelegenheit, in dieser einzigartigen Region zu leben, wo Lebensqualität und Freizeitvergnügen Hand in Hand gehen. Rust ist nicht nur ein Ort zum Wohnen, sondern ein Ort, an dem Sie die Vorzüge des Lebens in vollen Zügen genießen können.
Lassen Sie sich von der Vielseitigkeit und dem Charme Rusts begeistern und entdecken Sie die Möglichkeiten, die diese besondere Stadt zu bieten hat. Ob als neues Zuhause oder als Investition – Rust ist ein Standort mit Zukunft.
Karte
Am Bühlacker 11, 77977 Rust
Herr Axel Fritsch
IMA Immobilien GmbH
| Webseite | https://www.ima-immobilien.de/ |
|---|---|
| Telefonnummer | +49 7821 954580 |
| E-Mail-Adresse | fritsch@ima-immobilien.de |
| Adresse | Alte Bahnhofstraße 10/4, 77933 Lahr/Schwarzwald |