Eckdaten
| Immobilientyp | Mehrfamilienhaus |
|---|---|
| Baujahr | 1992 |
| Bauphase | Haus Fertig Gestellt |
| Letzte Modernisierung / Sanierung | 2010 |
| Verfügbar ab | sofort |
| Objektzustand | Gepflegt |
| Qualität der Ausstattung | Normal |
| Anzahl Stellplätze | 3 |
| Stellplatz | Garage |
Beschreibung
**Zwei Häuser auf einem Grundstück – Ihre dreifache Chance!**
Entdecken Sie die hervorragende Möglichkeit, ein Einfamilienhaus zu bewohnen und gleichzeitig ein renditestarkes 2-Familienhaus zu besitzen. Ideal für Eigenheimbesitzer, die auch in die Vermietung einsteigen möchten!
**Details:**
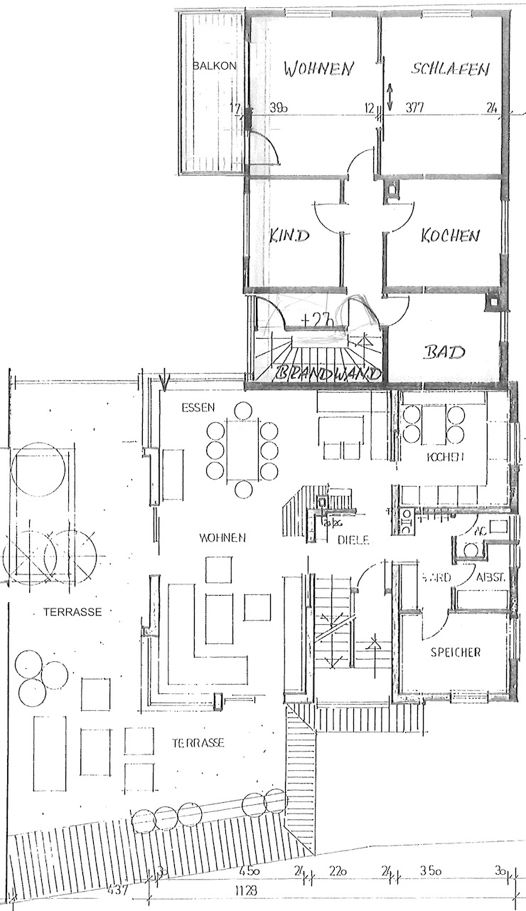
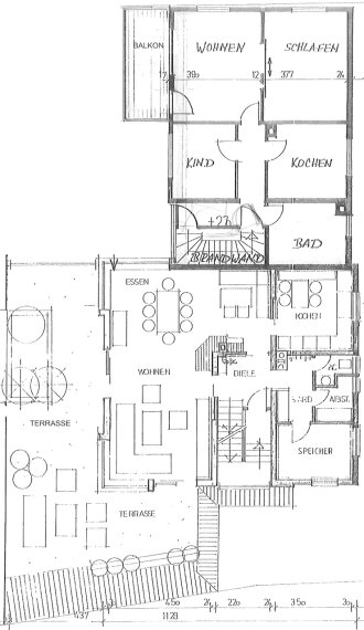
Das charmante Einfamilienhaus, das 1992 auf dem bestehenden Grundstück errichtet wurde, bietet Ihnen ein komfortables Wohnambiente. Der lichtdurchflutete Wohn- und Essbereich lädt zum Verweilen ein und ist der perfekte Ort für gesellige Abende. Die gut ausgestattete Küche, ein Gäste-WC sowie ein modernes Badezimmer mit Wanne, Dusche und Doppelwaschbecken sorgen für zusätzlichen Komfort. Mit drei großzügigen Schlafzimmern und einer weitläufigen, teilüberdachten Terrasse mit ca. 70 qm Fläche, die Sie in den warmen Monaten zum Entspannen einlädt, wird dieses Haus zu Ihrem persönlichen Rückzugsort. Ein weiterer Balkon ergänzt das Raumangebot und bietet Ihnen weiteren Komfort. Der große Kachelofen im Wohnzimmer sorgt für eine gemütliche Atmosphäre. Zudem bietet das Dachgeschoss noch weitere Gestaltungsmöglichkeiten. Es sind 2-fach verglaste Holzfenster aus dem Baujahr verbaut.
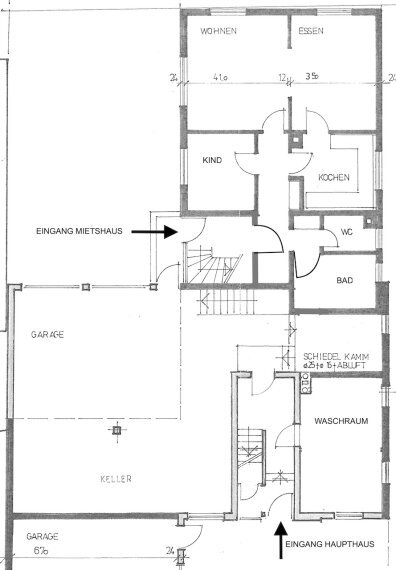
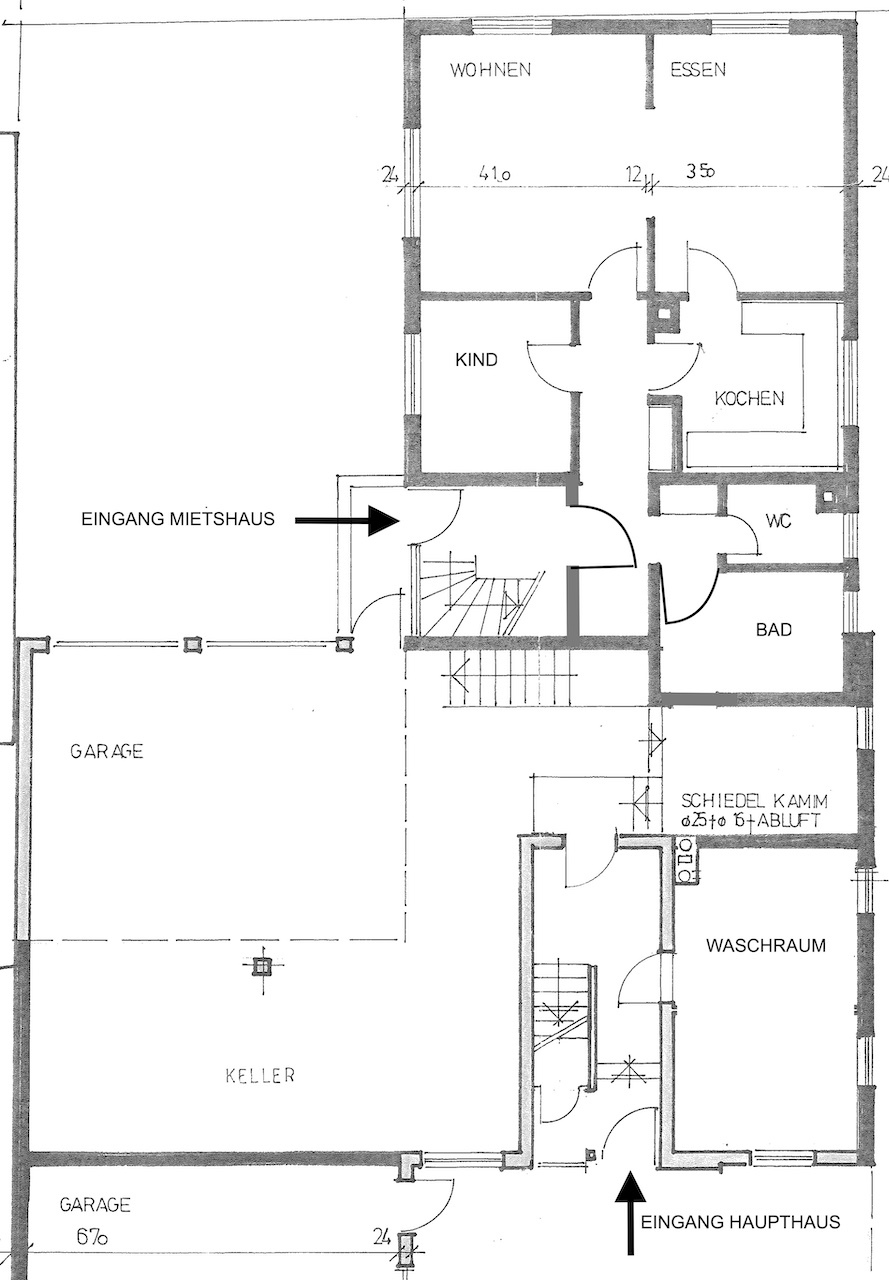
Direkt angrenzend befindet sich das 2-Familienhaus, das aus zwei hochwertigen Eigentumswohnungen besteht. Jede Wohnung verfügt über ca. 76 m² Wohnfläche und umfasst drei Zimmer, eine Küche, ein Wohn- und Schlafzimmer sowie ein Bad mit Wanne und Dusche. Die Wohnungen sind derzeit fest vermietet und generieren monatlich eine Kaltmiete von ca. 1.300 Euro. Das Gebäude wurde 2008 umfassend grundsaniert, einschließlich der Installation von 3-fach verglasten Kunststofffenstern und einer vollständigen Außendämmung. Auch der Dachboden ist bestens gedämmt.
Beide Häuser teilen sich eine moderne Heizungsanlage, und die Elektrik sowie die Wasserleitungen sind in einwandfreiem Zustand – hier gibt es keinen Instandhaltungsstau. Die Mieter haben einen separaten Eingang, was Ihnen Privatsphäre und Unabhängigkeit garantiert. Dank einer bestehenden Teilungserklärung und klarer Nutzungsbedingungen wird die Nutzung der Gebäude reibungslos geregelt.
Zusätzlich stehen Ihnen insgesamt drei Garagen und zwei Außenstellplätze zur Verfügung, die allen Bewohnern zugeordnet sind.
Nutzen Sie diese einmalige Gelegenheit, in einer ruhigen und attraktiven Lage sowohl ein Eigenheim zu beziehen als auch von stabilen Mieteinnahmen zu profitieren. Vereinbaren Sie noch heute einen Besichtigungstermin und überzeugen Sie sich selbst von den Vorzügen dieser einzigartigen Immobilie!
Ein Teil- oder Einzelkauf ist nicht möglich. Das Objekt wird nur als Gesamteinheit verkauft!
Bitte sprechen Sie vorab mit ihrer Hausbank wegen der Finanzierung. Gerne können Sie diese zur Besichtigung mitbringen.
Fläche
| Wohnfläche | ca. 308 m² |
|---|---|
| Grundstücksfläche | ca. 412 m² |
| Zimmer | 11 |
| Anzahl Schlafzimmer | 7 |
| Anzahl Badezimmer | 3 |
Preis
| Kaufpreis | 698.000 € |
|---|---|
| Grunderwerbsteuer | 5,0 % |
| Maklerprovision | 3,57 % |
| Notarkosten / Grundbucheintrag | 1,5 % |
Vertragsgrundlage unserer Leistung sind unsere Allgemeinen Geschäftsbedingungen.
Dies ist der aktuelle Angebotskaufpreis. Wir weisen darauf hin, dass dieser Angebotskaufpreis fallen oder bei erheblicher Nachfrage nach Objekten dieser Art auch steigen kann.
Die Maklercourtage beträgt 3,57 % inkl. der gesetzlichen Mehrwertsteuer. Sie ist verdient und fällig bei Abschluss eines notariellen Kaufvertrages und vom Käufer zu zahlen. Grunderwerbssteuer, Notar- und Gerichtskosten sind vom Käufer zu tragen. Im Übrigen gelten unsere Allgemeinen Geschäftsbedingungen. Irrtum und Zwischenverkauf vorbehalten.
Energie
| Energieausweis | Energieausweis liegt für das Gebäude vor |
|---|---|
| Erstellungsdatum | Ab 1. Mai 2014 |
| Gültig bis | 27.11.2035 |
| Energieausweistyp | Bedarfsausweis |
| Endenergiebedarf | 128,00 kWh/(m²*a) |
| Energieeffizienzklasse | D |
| Baujahr laut Energieausweis | 1992 |
| Wesentliche Energieträger | Gas |
| Heizungsart | Zentralheizung |
Bilder
Lage
**Willkommen in Hohberg-Hofweier: Ihr neues Zuhause wartet auf Sie!**
Entdecken Sie die charmante Gemeinde Hohberg-Hofweier, ein idyllischer Ort, der durch seine malerische Umgebung und hervorragende Lebensqualität besticht. Eingebettet in eine ruhige, naturnahe Lage, bietet dieser Ortsteil eine harmonische Balance zwischen ländlichem Flair und städtischer Annehmlichkeiten.
**Lage und Umgebung**
Hohberg-Hofweier liegt im Landkreis Ortenaukreis und ist bekannt für seine hervorragende Anbindung. Dank der Nähe zu wichtigen Verkehrsachsen erreichen Sie die umliegenden Städte und Gemeinden mühelos. Die malerische Landschaft lädt zu ausgedehnten Spaziergängen und Fahrradtouren ein und verspricht einen hohen Freizeitwert.
Die perfekte Mischung aus Ruhe und Erreichbarkeit macht Hohberg-Hofweier zu einem idealen Wohnort für Familien, Paare und Singles. Schulen, Kindergärten sowie Einkaufsmöglichkeiten sind in der Nähe und gewährleisten eine bequeme Versorgung des täglichen Bedarfs.
**Objektbeschreibung**
Das angebotene Objekt besticht durch seine moderne Architektur und lichtdurchfluteten Räume. Hier erwarten Sie großzügige Wohnflächen, die durch eine durchdachte Raumaufteilung bestechen. Die hohe Bauqualität und die Verwendung erstklassiger Materialien schaffen eine angenehme Wohnatmosphäre.
Die offene Küche, ausgestattet mit hochwertigen Geräten, lädt zu geselligen Kochabenden ein und bietet ausreichend Platz für gemeinsame Mahlzeiten. Der großzügige Wohnbereich eröffnet Zugang zu einer sonnigen Terrasse, die zum Entspannen und Verweilen im Freien einlädt.
Die Schlafzimmer sind hell und freundlich gestaltet und bieten ausreichend Platz für individuelle Einrichtungsideen. Das Badezimmer überzeugt durch moderne Sanitärausstattung und durchdachte Details, die den Komfort erhöhen.
**Zusätzliche Informationen**
Das Objekt verfügt über hochwertige Isolierung und moderne Heiztechnik, die nicht nur für ein angenehmes Raumklima sorgen, sondern auch energieeffizientes Wohnen ermöglichen. Parkmöglichkeiten sind ausreichend vorhanden, sodass auch Gäste bequem parken können.
**Fazit**
Hohberg-Hofweier ist mehr als nur ein Wohnort – es ist ein Lebensgefühl. Lassen Sie sich von der Faszination dieser Gemeinde verzaubern und erleben Sie die Vorzüge eines modernen, komfortablen Zuhauses in einer der schönsten Regionen Baden-Württembergs.
Vereinbaren Sie noch heute einen Besichtigungstermin und lassen Sie sich von diesem einzigartigen Angebot überzeugen! Ihr neues Zuhause in Hohberg-Hofweier wartet auf Sie!
Karte
Georg-Ehret-Straße 2A, 77749 Hohberg
Herr Axel Fritsch
IMA Immobilien GmbH
| Webseite | https://www.ima-immobilien.de/ |
|---|---|
| Telefonnummer | +49 7821 954580 |
| E-Mail-Adresse | fritsch@ima-immobilien.de |
| Adresse | Alte Bahnhofstraße 10/4, 77933 Lahr/Schwarzwald |