Eckdaten
| Immobilientyp | Maisonette |
|---|---|
| Baujahr | 1955 |
| Letzte Modernisierung / Sanierung | 2010 |
| Verfügbar ab | sofort |
| Objektzustand | Gepflegt |
| Qualität der Ausstattung | Normal |
| Anzahl Stellplätze | 1 |
| Stellplatz | Carport |
| Stellplätze-Kaufpreis | 10.000 € |
Beschreibung
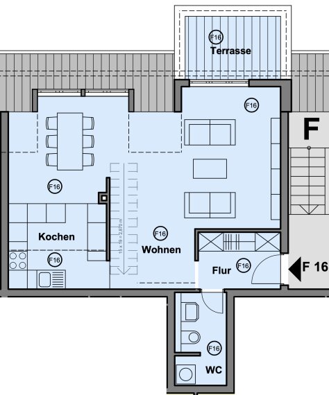
Attraktive 3-Zimmer-Maisonette-Wohnung in gefragter Lage.
Diese ansprechende Wohnung ist derzeit an zuverlässige, solvente Mieter vermietet und bietet eine hervorragende Investitionsmöglichkeit.
Details:
– Hochwertige Einbauküche mit praktischer Kochinsel, bereits im Preis enthalten
– Edle Holz-Parkettböden und stilvolle Fliesen in den unterschiedlichen Wohnräumen
– Modernes Badezimmer mit Wanne, Dusche und zwei Waschbecken (mit Fenster)
– Gemütlicher Balkon mit Blick ins Grüne, ideal zum Entspannen
– Gäste-WC mit Waschmaschinenanschluss
– Personenaufzug im Gebäude sorgt für barrierefreien Zugang
– Zugehörig ist ein Carport-Stellplatz (Achtung Mehrkosten in Höhe von 10.000 Euro hierfür)
Die Rücklagen wurden erhöht, weil eine kleine Sanierung am Haus ansteht. Für diese Mehrkosten, kommt der Verkäufer auf. Details gerne bei der Besichtigung.
Zur Wohnung gehören ein Kellerraum sowie ein Trockenraum. Zudem steht den Bewohnern ein Fahrradraum zur Verfügung, der zusätzlichen Komfort bietet.
Die Beheizung des Hauses erfolgt durch eine moderne Pelletheizung in Kombination mit einer effizienten Gaszentralheizung.
Gerne laden wir Sie zu einer Besichtigung der Wohnung ein. Bitte klären Sie im Vorfeld Ihre Finanzierungsmöglichkeiten mit Ihrer Bank.
Fläche
| Wohnfläche | ca. 100 m² |
|---|---|
| Zimmer | 3 |
| Anzahl Schlafzimmer | 2 |
| Anzahl Badezimmer | 2 |
Preis
| Kaufpreis | 310.000 € |
|---|---|
| Grunderwerbsteuer | 5,0 % |
| Maklerprovision | 3,57 % |
| Notarkosten / Grundbucheintrag | 1,5 % |
Vertragsgrundlage unserer Leistung sind unsere Allgemeinen Geschäftsbedingungen.
Dies ist der aktuelle Angebotskaufpreis. Wir weisen darauf hin, dass dieser Angebotskaufpreis fallen oder bei erheblicher Nachfrage nach Objekten dieser Art auch steigen kann.
Die Maklercourtage beträgt 3,57 % inkl. der gesetzlichen Mehrwertsteuer. Sie ist verdient und fällig bei Abschluss eines notariellen Kaufvertrages und vom Käufer zu zahlen. Grunderwerbssteuer, Notar- und Gerichtskosten sind vom Käufer zu tragen. Im Übrigen gelten unsere Allgemeinen Geschäftsbedingungen. Irrtum und Zwischenverkauf vorbehalten.
Energie
| Energieausweis | Dieses Gebäude unterliegt nicht den Anforderungen der EnEV |
|---|---|
| Baujahr laut Energieausweis | 1955 |
| Wesentliche Energieträger | Pelletheizung |
| Heizungsart | Holz-Pelletheizung |
Bilder
Lage
Bertha von Suttner Allee, 77933 Lahr – Ihr neues Zuhause in bester Lage
Willkommen in der Bertha von Suttner Allee – einer der gefragtesten Adressen in Lahr. Diese charmante Wohngegend vereint modernes Wohnen mit einer hohen Lebensqualität und bietet eine perfekte Balance zwischen urbanem Leben und naturnaher Erholung.
Lage und Umgebung
Die Bertha von Suttner Allee besticht durch ihre zentrale Lage und die hervorragende Anbindung an öffentliche Verkehrsmittel. Einkaufsmöglichkeiten, Schulen, und Freizeitangebote befinden sich in unmittelbarer Nähe und sind bequem zu Fuß oder mit dem Fahrrad erreichbar. Genießen Sie die Vorzüge einer lebendigen Nachbarschaft, während Sie gleichzeitig die Ruhe der umliegenden Grünflächen schätzen.
Architektur und Ausstattung
Die Immobilie in der Bertha von Suttner Allee zeichnet sich durch eine harmonische Architektur und moderne Bauweise aus. Helle, lichtdurchflutete Räume schaffen eine einladende Atmosphäre, während durchdachte Grundrisse optimalen Wohnkomfort garantieren. Hochwertige Materialien und eine sorgfältige Ausführung verleihen der Immobilie eine besondere Note. Jedes Detail wurde mit Bedacht gewählt, um ein behagliches und stilvolles Zuhause zu schaffen.
Umweltfreundlichkeit und Nachhaltigkeit
Ein besonderes Augenmerk wurde auf Nachhaltigkeit gelegt. Die Immobilie erfüllt höchste Standards in puncto Energieeffizienz und umweltfreundliches Wohnen. Innovative Technologien sorgen für einen verantwortungsvollen Umgang mit Ressourcen und tragen zu einem angenehmen Wohnklima bei.
Die Bertha von Suttner Allee in Lahr bietet Ihnen die Möglichkeit, in einem attraktiven und zukunftsorientierten Umfeld zu wohnen. Ob für Familien, Paare oder Singles – diese Immobilie erfüllt alle Ansprüche an modernes Wohnen. Überzeugen Sie sich selbst von dieser einmaligen Gelegenheit und vereinbaren Sie noch heute einen Besichtigungstermin. Ihr neues Zuhause wartet auf Sie!
Karte
Bertha-von-Suttner-Allee 34, 77933 Lahr
Frau Juliana Obrigewitsch
IMA Immobilien GmbH
| Webseite | https://www.ima-immobilien.de/ |
|---|---|
| Telefonnummer | +49 7821 954580 |
| E-Mail-Adresse | zentrale@ima-immobilien.de |
| Adresse | Alte Bahnhofstraße 10/4, 77933 Lahr/Schwarzwald |